top of page
NOS SOLUTIONS
VOTRE MAÎTRE D'ŒUVRE
MAISON SUR MESURE
MODÈLE DE MAISON
CONTACT
OBTENIR UN DEVIS
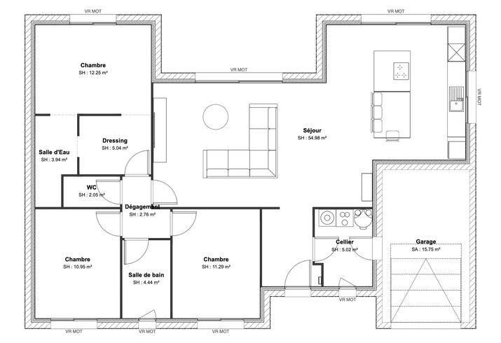
SOMPORT 2
Surface totale
112 m2
Surface séjour
55 m2
Suite parentale
Oui
Nombre de chambre
3
Étage
Non
Oui
Garage
Projet précédent
Projet suivant
NOS SOLUTIONS
VOTRE MAÎTRE D'ŒUVRE
MAISON SUR MESURE
MODÈLE DE MAISON
CONTACT
bottom of page